H37 Serving Old Isleworth, St Margarets and Richmond
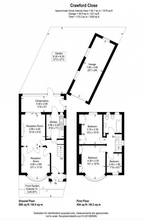
Situated in a secluded Cul de sac off of the London Road. A 1930's built end of terrace house with gardens to the front and rear and with a shared driveway to garage. The accommodation comprises on the ground floor of porch, entrance hallway, through lounge, kitchen and lean to conservatory. The first floor provides three bedrooms, two doubles and one single and family bathroom. This home is very conveniently located for Isleworth town centre with its excellent array of shops including Tesco's and Sainsburys convenience stores. Isleworth station serves Waterloo and the local H37 Hopper regularly goes to St Margarets and Richmond. This home is being sold chain free and is immediately available to view.
Council Tax Band: D
Property Location
Floorplans
Energy Performance Certificate
Terms & conditions for Tenants
HOLDING & ADMINISTRATION FEE Applicants will be charged a reference and admin fee of £105.00 plus VAT. This covers administration costs, credit checking fees and tenancy agreement preparation. The fee will not be refunded in the event that a tenant fails to commence a tenancy.
REFERENCES When renting a property tenants must supply names and addresses of at least three referees(Previous landlord, Employer and Personal referee) so that we may approach them for references. Each applicant will also be required to pass a personal credit check. If you are renting at present, proof of your residence may be required IMPORTANT.
INITIAL PAYMENT Tenants will be required to pay a security deposit (equivalent to one months rent) and one months rent in advance. Please note that this must be paid before moving into the property and must be in cleared funds on the day on which the tenancy is to commence. If the balance is going to be a hand written cheque Anthony James Manser need to receive it SEVEN BANK WORKING DAYS(which exclude Saturdays, Sundays and Bank Holidays) before the tenancy is due to commence.
RENT PAYMENTS A standing order mandate will be set up to ensure rent is paid on time each month. If the information is not to hand already please let Anthony James Manser know from which bank account(s) the rent will be paid each month, as soon as possible.
SERVICES Tenants will be responsible for all gas, electric, light and power consumed or supplied on or to the property, together with water rates and council tax and the amount of all charges made for the use of the telephone(if any) on the property. Once a move in date has been agreed, Anthony James Manser will endeavour to supply you with the last known telephone number at the property. Quoting this number will assist you in getting the phone service connected in your name when you speak to the telephone provider who will only accept instructions from the consumer; hence neither the outgoing occupier nor Anthony James Manser can arrange this on your behalf.
INSURANCE The tenants will be responsible for insurance on their personal belongings, and insurance adequate to cover the cost of accidental damage caused by the tenant to furniture, fixtures, fittings and effects included within the property. Please ask for more details.
REPAIRS Any tenants requiring repairs to the property or extra furnishings must inform Anthony James Manser in writing and obtain specific permission, prior to any works being carried out, otherwise the tenant may find themselves liable for the costs.
KEYS Keys will be handed over on the date the tenancy commences. They cannot be issued before the tenancy start date. Please contact Anthony James Manser to arrange a mutually convenient time to move in.
TENANCY AGREEMENT These Terms & Conditions are in supplement to the conditions of the Assured Shorthold Tenancy Agreement, which must be strictly adhered to. Specimen copies of the agreement are held, and are obtainable upon request.The contents of this e-mail are confidential to the addressee. Unauthorised access and use is prohibited. Any opinions expressed in this e-mail are those of the individual and not of Revolutions Ltd, unless specifically stated otherwise.